# 2025
Withdrawn
Field (Share) - Lakatameia, Nicosia
Nicosia, Lakatameia
€ 137.000+VAT
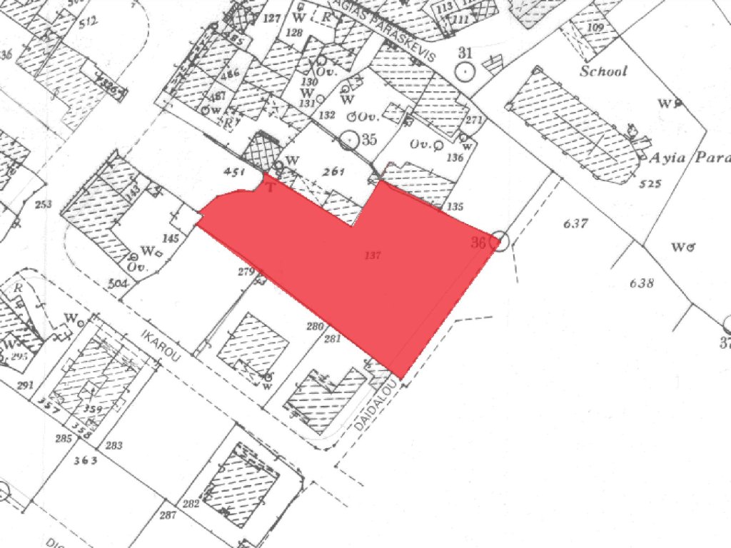
Description
Available for sale is the 2/3 shares of the residential field which is approximate 1.075 sqm, in Lakatameia Municipality in Nicosia District. It is located 60 meters west of Agias Paraskevis church and 30 meters east of Archbishop Makarios Avenue III.It is located close to all necessary services and amenities within excellent access towards the main roads of the area.The field has an irregular shape, a flat topography and abuts onto Daidalou Street along its southeastern boundary with a street front of about 30 meters.It lies within the residential Town Planning Zone Pa9 which allows for the development of a two-storey building with a building factor of 120%.
Details
Land Type:
Field
Town Planning Zone:
Residential
Building Coverage (%):
70%
Building Density (%):
120%
Height:
7m
Areas
Plot:
1,612m²