# 2071
Available
Field (Share) - Kiti, Larnaca
Larnaca, Kiti
€ 275.000+VAT
Description
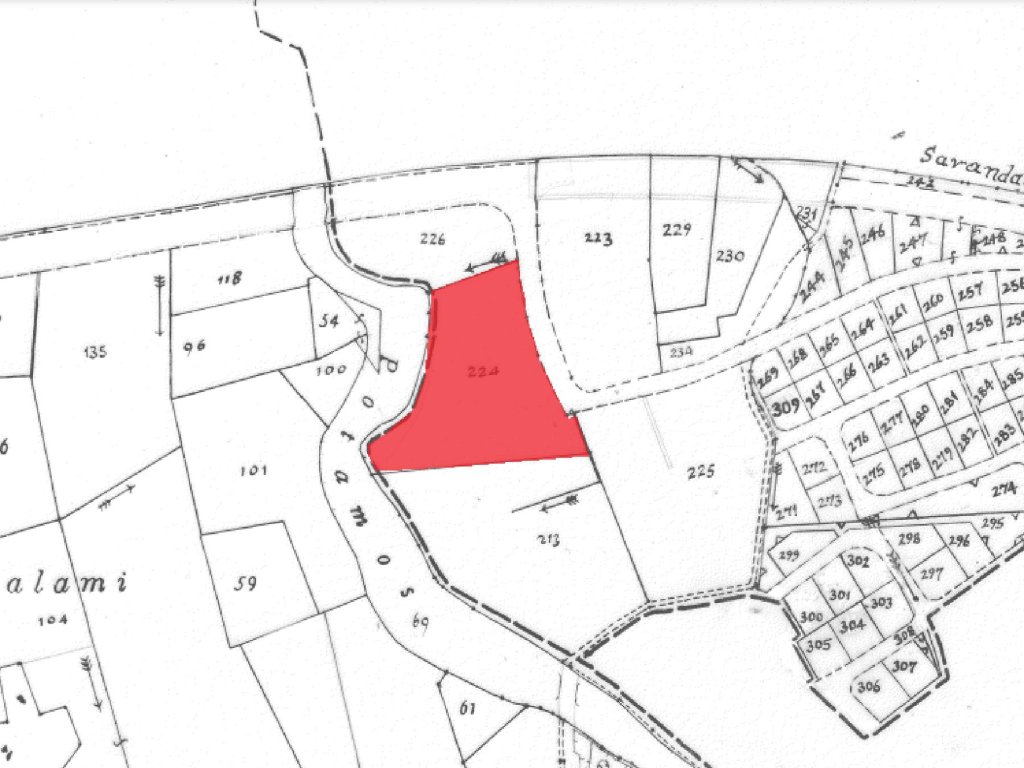
Available for sale is the south (5/12) share of a touristic field which is approximately 6,079sqm, in a quiet area in Kiti community, in Larnaca District. It is situated at a distance of approximately 1.6k west from the Pevolia village center and approximately 500m north from the sea.It has an irregular shape, a level surface and abuts onto a registered road along its eastern boundary with a frontage of approximately 130 m.An advantage of the property is that lies within the town planning zone T2a that allows the touristic developmentsThere is a distribution agreement and the share corresponds to the southern part of the property as shown in red and with the letter (A) in the drawing.
Details
Land Type:
Field
Town Planning Zone:
Tourist
Building Coverage (%):
20%
Building Density (%):
45%
Height:
13m
Zone:
Τ2α
Share:
5/12
Areas
Plot:
14,590m²
Main Features
Sea View: