# 3791
CI1PL 2 Houses B
Nicosia, Geri
€ 390.000+VAT
Description
Under Construction House - Ready By January of 2026
Contact us for more information!
Details
Construction Stage:
Under Construction
WC Bathrooms:
1
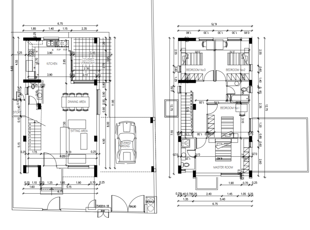
Bedrooms:
4
Bathrooms:
3
Town Planning Zone:
Residential
Energy
Heating Type:
Central Heating
Heating Medium:
Underfloor Heating
Photovoltaic Panels:
Thermal Insulation:
Underfloor Heating Provision:
Energy Efficiency Grade:
A
Areas
Internal:
159m²
Covered Verandas:
9m²
Uncovered Verandas:
4m²
Plot:
265m²
Total:
196m²
Main Features
Solar Water Heater:
En-Suite:
Provision for Split Units:
Photovoltaic Panels: