# 3790
CI1PL 2 Houses A
Nicosia, Latsia
€ 390.000+VAT
Description
Under Construction - Ready By January 2026
Contact us for more information!
Details
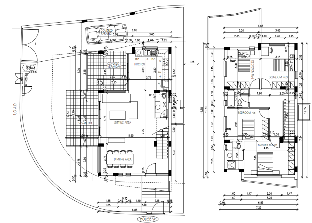
WC Bathrooms:
1
Bedrooms:
4
Bathrooms:
3
Town Planning Zone:
Residential
Energy
Heating Type:
Central Heating
Heating Medium:
Underfloor Heating
Photovoltaic Panels:
Thermal Insulation:
Underfloor Heating Provision:
Energy Efficiency Grade:
A
Areas
Internal:
157m²
Covered Verandas:
10m²
Uncovered Verandas:
19m²
Plot:
265m²
Main Features
Solar Water Heater:
En-Suite:
Provision for Split Units:
Photovoltaic Panels: